Обяви 0 За нас Контакти
Продава 2-СТАЕН
град Пловдив, Беломорски
85 100 €
166 441.13 лв.

(1 150 €, 2 249.20 лв./m2)
Цената е с включено ДДС
История на цената
Коригирана в 10:16 на 23 февруари, 2026 год.
Обявата е посетена 643 пъти.
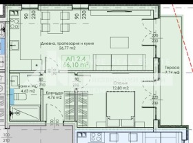
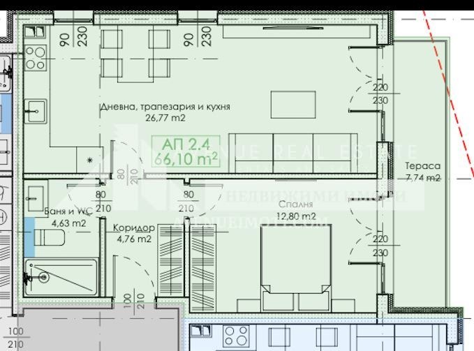
Площ:
74 m2
Етаж:
2-ри от 3
Строителство:
Тухла,

Описание на имота:


реф. номер 38632
0 % КОМИСОННА
Агенция Авеню имоти има удоволствието да ви представи Двустаен апартамент в сграда в строеж в кв. Беломорски
ПЛАТИ САМО 20 % СЕГА
НЕ ПРОСТО ПРОЕКТ А ИЗТОЧНИК НА ВДЪХНОВЕНИЕ!
Представям ви елегантна бутикова сграда в престижния кв. Беломорски място, където комфортът, стилът и природата се срещат в съвършен баланс.
ТРИ изискани етажа
Само 19 апартамента тишина, уют и усещане за ексклузивност
ВЪЗМОЖНОСТ ЗА ЗАКУПУВАНЕ НА ЖИЛИЩЕ С ДВОРНО МЯСТО
Луксозни общи части
Окачена фасада и алуминиева дограма от висок клас
Красива, модерна ограда
Филтрационна система за чиста вода
15 външни паркоместа
Невероятни гледки към Родопите
Това е място, създадено за качествен живот, за хора, които искат повече от просто дом искат усещане, атмосфера, спокойствие.
АТРАКТИВНИ СХЕМИ НА ПЛАЩАНЕ:
20% СЕГА
80% НА АКТ 15/16
БЕЗ КОМИСИОННА ОТ КУПУВАЧИ
ВСИЧКО ТОВА Е ВЕЧЕ ДОСТЪПНО.
Купи СЕГА, докато най-добрите апартаменти все още са свободни!
Това е инвестиция, която не просто се изплаща, а се изживява!
Свържи се днес бъдещият ти дом те очаква.
Особености
Тухла
За контакт:
0875364160
Брокер:
Трифон Генов
+359875364160
Още оферти от брокера: Продава | Дава под наем | Купува | Наема
Агенция:
АВЕНЮ РИЪЛ ЕСТЕЙТ
0875 364 160
АВЕНЮ РИЪЛ ЕСТЕЙТ logo
Медал за прослужено време
В imot.bg от 2018 г.
avenuerealestate.imot.bg
Адрес:
област Пловдив, гр. Пловдив, Бул. Марица 160б
ИЗПРАТИ ЗАПИТВАНЕ
ИЗПРАТИ ЗАПИТВАНЕТО

Продава 2-СТАЕН
град Пловдив, Беломорски
Обява: 1b176830865635550

85 100 €
166 441.13 лв.
История на цената
(1 150 €, 2 249.20 лв./m2)

Цената е с включено ДДС
ЗАПАЗИ ОБЯВАТА

Местоположение: град Пловдив, Беломорски

Допълнителни данни за имотите в района и сравнение с други райони

Покажи

Период

и 5 месеца

* Средните цени са определени чрез медианна стойност