Обяви 0 За нас Контакти
Продава 2-СТАЕН
град Пловдив, Христо Смирненски
122 000 €
238 611.26 лв.

(1 605 €, 3 139.11 лв./m2)
Цената е с включено ДДС
История на цената
Публикувана в 13:25 на 28 януари, 2026 год.
Обявата е посетена 309 пъти.
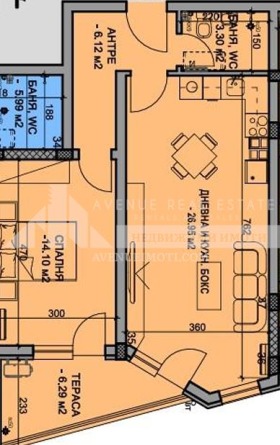
Площ:
76 m2
Етаж:
2-ри от 6
Строителство:
Тухла,

Описание на имота:



? Реф. номер: 38780!
? БЕЗ КОМИСИОННА!
? СТРАХОТНА ОФЕРТА!

? Агенция Авеню Риъл Естейт с голямо удоволствие Ви представя:
Двустаен апартамент в страхотна сграда, разположена в кв. Христо Смирненски, гр. Пловдив!

НОВА МОДЕРНА СГРАДА | гр. Пловдив кв. Христо Смирненски | до болница Селена
Тип имоти: двустайни, тристайни и многостайни апартаменти
Строителство: новострояща се сграда
Инвеститор: доказан строител
Статус: продажба на зелено

?? ХАРАКТЕРИСТИКИ НА СГРАДАТА:
Модерна архитектура
Луксозни общи части
Контролиран достъп
Асансьор
Висок клас дограма
Топло- и хидроизолация
Подземни и надземни паркоместа (по избор)

? ЛОКАЦИЯ:
Кв. Христо Смирненски предпочитан и бързо развиващ се район
До болница Селена
Близо до магазини, училища, детски градини
Отлична транспортна достъпност
Тиха и спокойна среда

? ПРЕДИМСТВА:
? Цена 1600 /кв.м
? Възможност за разсрочено плащане
? Подходящо за инвестиция
? Висок потенциал за отдаване под наем
? Ново строителство с модерна визия

? УДОБНИ СХЕМИ НА ПЛАЩАНЕ
50% ПД / 10 равни вноски по 5%
10 равни вноски по 10%

? Авеню Имоти Ви предлага:
Професионално кредитно посредничество чрез Credit Center при ипотека, потребителски кредит и рефинансиране!
УСЛУГАТА Е ИЗЦЯЛО БЕЗПЛАТНА!
ИЗГОТВЯНЕ НА НЯКОЛКО ОФЕРТИ ОТ ВОДЕЩИ БАНКИ!
НАЙ-ИЗГОДНИ УСЛОВИЯ СПРЯМО ВАШИЯ ПРОФИЛ!
НЕ Е НЕОБХОДИМО ДА СЕ РАЗКАРВАТЕ ВЪВ ВСЕКИ КЛОН НА РАЗЛИЧНИ БАНКИ!

? За повече информация, разпределения и огледи свържете се с нас!

Особености
Тухла
За контакт:
0875364160
Брокер:
Авеню Брокер
+359875364160
Още оферти от брокера: Продава | Дава под наем | Купува | Наема
Агенция:
АВЕНЮ РИЪЛ ЕСТЕЙТ
0875 364 160
АВЕНЮ РИЪЛ ЕСТЕЙТ logo
Медал за прослужено време
В imot.bg от 2018 г.
avenuerealestate.imot.bg
Адрес:
област Пловдив, гр. Пловдив, Бул. Марица 160б
ИЗПРАТИ ЗАПИТВАНЕ
ИЗПРАТИ ЗАПИТВАНЕТО

Продава 2-СТАЕН
град Пловдив, Христо Смирненски
Обява: 1b176959953446963

122 000 €
238 611.26 лв.
История на цената
(1 605 €, 3 139.11 лв./m2)

Цената е с включено ДДС
ЗАПАЗИ ОБЯВАТА

Местоположение: град Пловдив, Христо Смирненски

Допълнителни данни за имотите в района и сравнение с други райони

Покажи

Период

и 4 месеца

* Средните цени са определени чрез медианна стойност